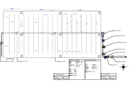
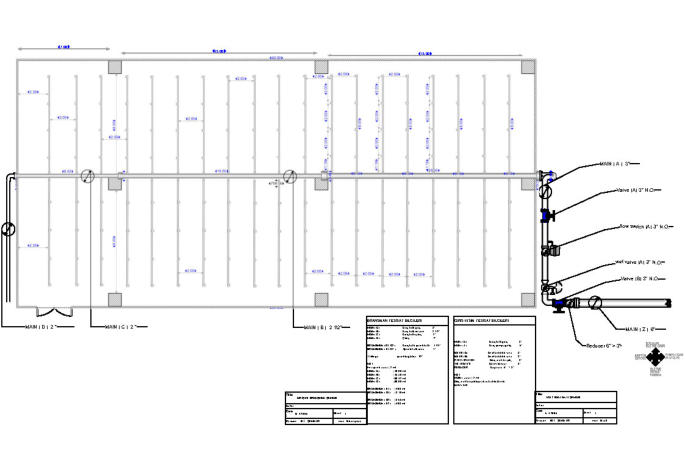
Yangın güvenlik sistemleri yerel kanun ve yönetmelikler ile ulusal ve uluslararası standartlara uygun şekilde tasarlanma ve uygulanması esasdır.
Bu sistemlerin tasarım aşamasında ilgili standartlar ve ürün özelliklerine göre gerekli mühendislik hesapları yapılarak doğru bir şekilde projelendirilmesi
olası bir yangın durumunda sistemlerin verimli ve etkin bir şekilde çalışabilmesi açısından büyük önem taşımaktadır.
Mühendislerimiz ve saha formenlerimiz projelendirilen sistemlerin çalışan işletme şartlarına uygun dizayn edilmesi ve uygulama sırasında ortaya
çıkabilecek olası değişiklikleri öngörerek gerekli revizyonların yapılması ihityacını erkenden yakalar.
Bu şekilde, bir yangın durumunda sistemlerin en doğru durumda tam kapasite ve sıfır hata ile çalışmasını sağlamaya çalışılır.
Uzman personellerimiz tarafından firmanızın tüm değerlendirilmeleri yapılıp, aşağıda örneği verilen birkaç başlıkda yangın mühendisliği hizmeti
verilmektedir.
Yapılan keşif ve saha çalışmaları sonrasında yapılması en uygun yangın söndürme seçimi,
Devreye alınmış işler durumdaki tüm yangın güvenlik sistemlerinin işletme içi kullanım prosedürü ve desteği,
Satış veya devir aşamasındaki İşletmelerin yerel ve uluslararası normlara uygun kabul edilebilri yangın sistem projesi desteği
Atıl durumda gayrii faal sistemlerin revizyonu ve çalışırı duruma getirilmesi için revizyon projelendirme ve esasları
Bahse konularında uzman mühendis kadromuzla, uluslararası standartlarda hesap ve tasarım yazılımları desteğiyle, yangın yönetmeliğine uygun olarak
işletmenize en uygun maliyeti düşük, verimi yüksek sistemleri projelendirmekteyiz.